LANDSCAPE DESIGN

Commercial & Residential

We can specify tree and hedge planting to help mitigate for any necessary tree removal and Catherine Fforde has the skills to design and specify soft landscaping to satisfy Planning Conditions and create beautiful gardens.

P1060297 copy

TREE SPECIFICATION

Replacement trees are often specified to mitigate for trees removed as part of development proposals. Appropriate species selection is critical. With an extensive knowledge of trees we are able to provide a specification for new tree planting that is tailored to your requirements.

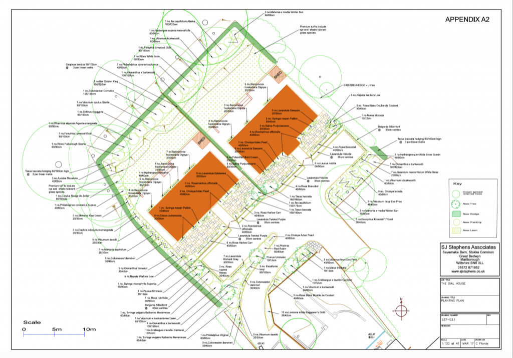
SOFT LANDSCAPE PLANS

We specify soft landscape schemes for development projects, preparing planting plans, plant schedules and a planting specification.

Appropriate species selection and design can help integrate new development into the surrounding landscape. Case Study: Childrey Site

 

Screen Shot 2018-04-24 at 11.37.31
Plan c

RESIDENTIAL GARDEN DESIGN  

Catherine Fforde is a qualified garden designer with sixteen years of experience in creating both formal and contemporary gardens.  She can prepare design plans and planting plans according to client needs, whether for a particular area or for the whole
garden.
Case Study: Wiltshire garden
Wiltshire
Savernake Barn, Stokke Common
Great Bedwyn, Marlborough
Wiltshire
SN8 3LL
01672 871 862
London
Coach House
Chetwynd Rd
London NW5 1BH
07831 341 887

 

 

Contact Us

01672 871 862

info@sjstephens.co.uk

Simon Logos all small